A Rua Silva Jardim é um endereço singular na cidade de Belo Horizonte, sempre olhei para essa pequena rua de três quadras, que vai da igreja do Floresta à rua Sapucaí, com um olhar admirado. Uma rua de pedra, com casinhas singelas e ar interiorano, a poucos metros do hipercentro da cidade.

Um dos painéis de grafite mais bonitos de BH (feito com a participação do meu cunhado Lucas Torres) está na rua Silva Jardim, e foi lá onde surgiu a Benfeitoria, um lugar chave da cultura belo-horizontina da última década. Sempre estava por ali, conectado intimamente com aquele endereço.


Em 2021, Fábio, amigo e cliente, comprou uma casa ‘modernistinha’ quase chegando na rua Sapucaí, uma casinha que já havia admirado por diversas vezes. A chamo de ‘modernistinha’ de forma carinhosa, pois apesar de ela não ser nenhuma obra prima da arquitetura moderna da cidade, me emociona por ser uma casa de bairro, ordinária no sentido de ser uma arquitetura popular, comum, recorrente, mas que guarda na sua intenção uma aspiração modernista, de um Brasil dos anos 50, com relevância estética e cultural.

Fábio faz parte de uma família de empreendedores criativos, é filho da designer Regina Misk e dos empresários Eduardo e Rafael Quick. Eu já havia trabalhado com todos eles em outros projetos, sempre foram oportunidades de aprender trabalhando. Era um destino feliz ter este cliente para um projeto a ser realizado no endereço que falava também sobre mim.




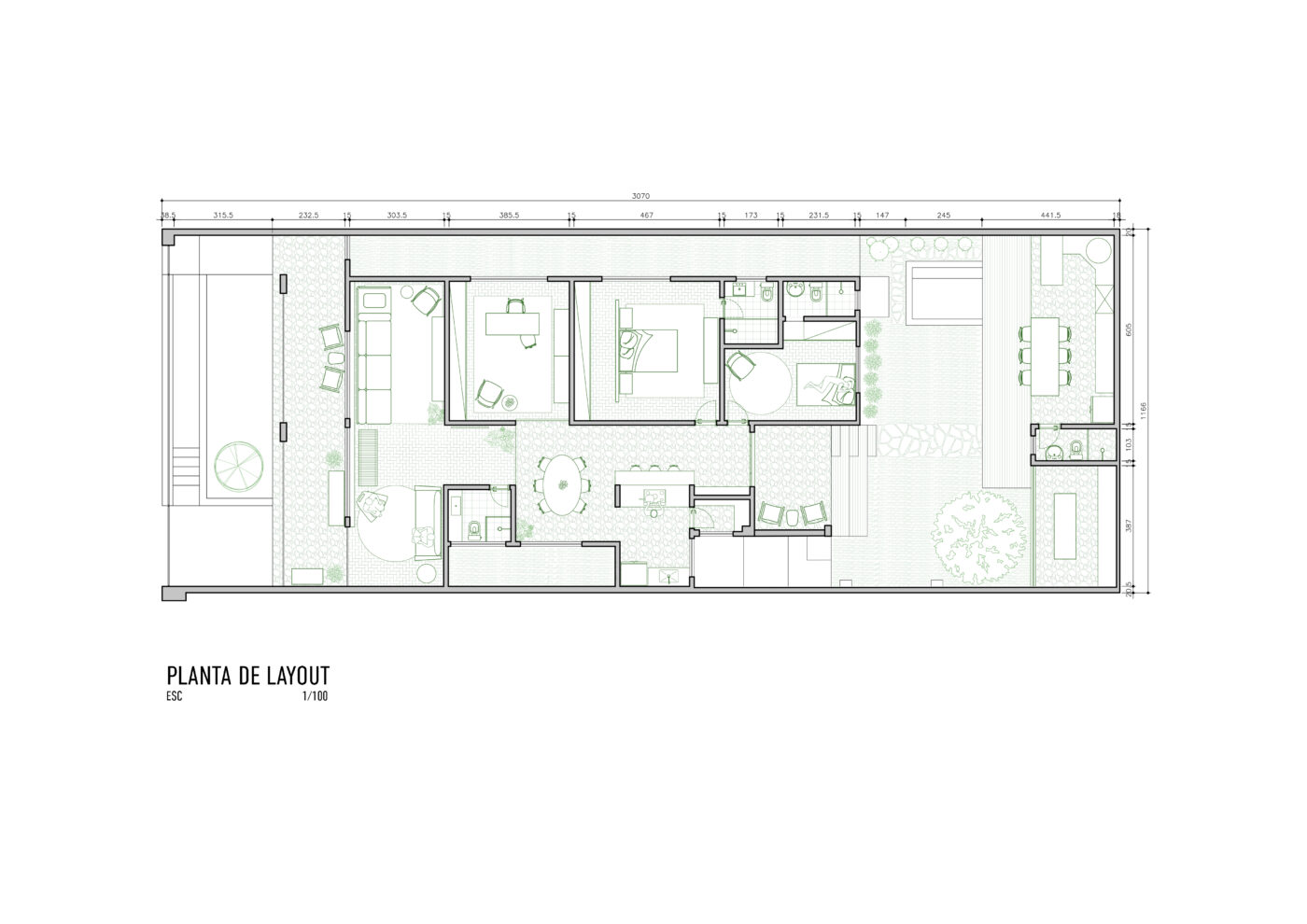
Com um orçamento enxuto, optamos por uma planta com poucas modificações, retiramos a parede que dividia o espaço de sala de estar e TV, e reduzimos o banheiro social a fim de criar uma ligação mais confortável entre os espaços.

Na sala, há duas janelas altas de tamanhos ligeiramente diferentes, solucionamos essa diferença por meio de uma cortina que atravessa o cômodo de fora a fora. Fizemos uma meia parede em drywall, com um cortineiro invertido que esconde a base da cortina criando um aspecto linear na sala. Assim reduzimos o custo da cortina e não perdemos espaço de parede para quadros e adornos.

A casa apresentava alguns caminhos importantes para trabalharmos, como recuperar e valorizar o piso da sala, um taco desenhado com peças de peroba e braúna; os guarda-corpos em serralheria de desenhos geométricos e o quintal, um luxo em pleno centro de Belo Horizonte.
E anos de aluguéis comerciais também nos oferecia desafios a serem vencidos, como a compartimentação excessiva, um corredor muito estreito de ligação entre sala e copa e a escolha descuidada dos revestimentos cerâmicos de quase toda casa.

A cozinha foi aberta e ampliada em direção a copa criando uma relação entre bancada de refeição rápida, sala de jantar e uma despensa aberta que serve de ligação ao alpendre do quintal. Um corredor secundário que ligava a cozinha original à área externa se transforou em despensa fechada, que amplia área de estoque e armazenamento.




Além disso decidimos abrir a parede do quarto que foi transformado em escritório para criar ainda mais amplitude em relação aos espaços sociais, e uma grande porta em veneziana de madeira permite o uso desse espaço de forma íntima e reservada quando for necessário.


No quarto principal, criamos o closet atrás da parede da cabeceira, que foi executada em painel de lambri e gesso de bordas arredondadas, e faz a divisão entre quarto e closet fluida.



Recuperamos a área gramada do quintal retirando a capa de concreto do piso. O alpendre, que está em um nível muito elevado em relação a grama foi alterado, criando uma escada/arquibancada que serve de espaço para encontro, conversas e contemplação do jardim.

Outro ponto importante do projeto foi em relação à materialidade. Vários dos empreendimentos da família Misk Quick estão relacionados ao resgate de técnicas do passado a luz da contemporaneidade. A Regina, mãe do Fabio, o faz através de belas peças em tear, tricô, crochê, bordado entre outros. Os irmãos, através do uso da memória afetiva como base dos seus negócios no ramo da alimentação e lazer. E o próprio Fabio, junto com os irmãos, no resgate de técnicas artesanais de produção de café.




O mote do projeto foi resgatar alguns elementos importantes para materialidade da arquitetura moderna brasileira, como o marmorite, as pastilhas, lambris, painéis em madeira escura, serralheira em ferro e uso de pedras naturais.

Ainda assim, tínhamos o desafio de fazê-lo com parcimônia e buscando o melhor custo possível para execução do projeto. Optamos então por trabalhar com materiais de grande personalidade, mas de custo baixo, como o granito Candeias, um granito barato, que se faz presente pela cor verde escura.
O marmorite, recorrente nos edifícios modernistas, é um material de qualidade e ótimo custo. Queríamos usá-lo com cacos grandes e o fizemos com descarte de granito bege Bahia.
Tivemos sorte de poder contar com madeiras de demolição da fazenda da família do Fabio, assim foi viabilizado fazer toda marcenaria com madeira maciça.


Por fim, o projeto ainda teve um acréscimo especial, poder contar com trabalhos da família do Fábio. Fizemos uma seleção de produtos da Regina para compor a casa em parceria com as produtoras Anna Lara de Amanda de Mendonça. A artesania e a materialidade das peças traduzem toda intenção do projeto. Tal aspecto cria uma atmosfera de conforto, própria dos produtos da Regina, mas também dão a casa do Fábio um sentido singular de familiaridade, de porto seguro, que são próprias de um lar.






