


Fomos chamados pelos clientes para desenvolver um projeto que setorizasse o imóvel da família, de forma que a casa dos anos 60 continuasse em parte como residência, mas que também abrigasse um espaço comercial. A ideia era criar, nas palavras da cliente, “Uma casa de Yoga, de terapias, um local para um retiro urbano, um lugar de acolhimento, de trocas”.

Como primeiro movimento, de tirar o trabalho de dentro de casa, dividimos a fachada da casa original em duas, cada uma com seu acesso e projeto individual, distinguindo e separando completamente os dois usos.





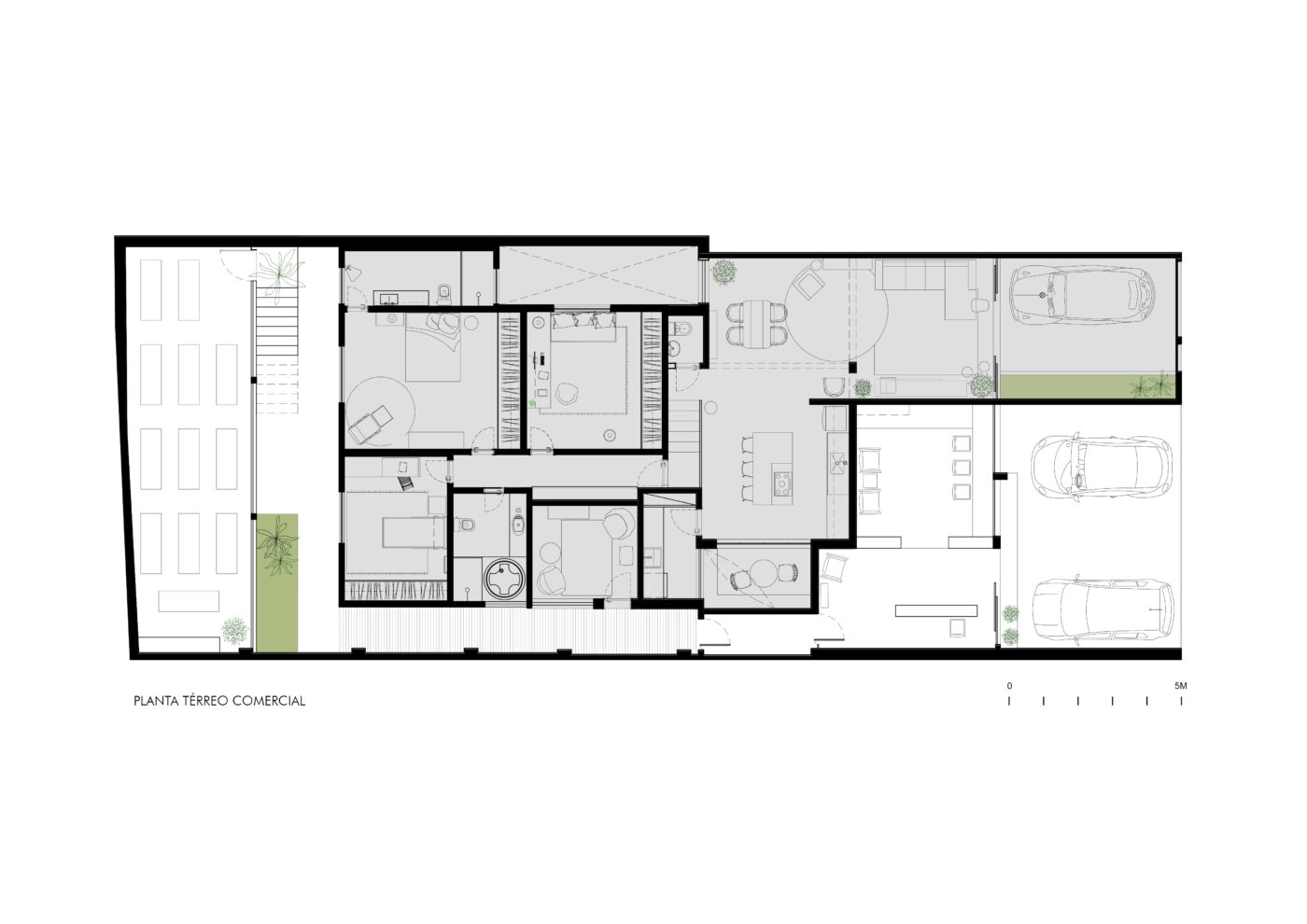
Pela conformação da casa, parte da fachada, o subsolo e o quintal eram os espaços possíveis para comércio e serviços, mas teríamos que lidar com a pouca área disponível, o acesso por um corredor lateral extenso e a limitação de pé direito. Além disso, a divisão da casa em dois programas distintos, ainda gerava o desafio de manter espaços amplos, com privacidade e priorizando iluminação e ventilação naturais.

A busca da atmosfera de retiro urbano orientou o projeto na definição de sua materialidade. A utilização das lajotas cerâmicas, da madeira e do bambu, junto com o projeto de paisagismo, fez desse espaço um oásis em meio ao caos a cidade.


Na parte comercial, usamos o quintal para criamos um pavilhão em madeira que ampliou em 100m² o espaço útil. A conformação desta nova edificação também foi essencial para criar uma grande sala de yoga que fosse generosa tanto em espaço, como em aberturas. Características que não conseguiríamos alcançar na edificação existente.


Tratamos as aberturas, tanto no comercial quanto no residencial afim garantir a privacidade. No comercial, o novo pavilhão recebeu esquadrias móveis em bambu que permitem controlar a visibilidade para as janelas do espaço residencial. Quando fechadas as esquadrias de bambu, uma abertura zenital linear traz luz natural para a sala de yoga.
Para marcar a entrada do visitante na Casa Sagarana, projetamos um corredor sensorial, que em sua primeira parte, é completamente azul, uma espécie de portal, uma passagem para se desconectar com o mundo externo. A partir daí uma rampa suave, coberta por lajotas cerâmicas, resolve o desnível entre os pavimentos e convida quem entra a um passeio por entre as plantas na parede, fruindo de uma luz filtrada pelas esteiras de bambu instaladas no pergolado.


No residencial, jardineiras abaixo das janelas irão filtrar o que é visto com o crescimento das plantas. Um pequeno pátio foi projetado para que aumentasse a quantidade de luz e ventilação entrando na casa, e na fachada frontal, aumentamos a abertura com uma grande porta de vidro translúcido.










